דירת 3 חדרים

דירת 3 חדרים מרווחת עם נוף למראות היפים של הגינה. הדירה מתוכננת באופן מיטבי ומציעה חללים המספקים תחושת מרחב.

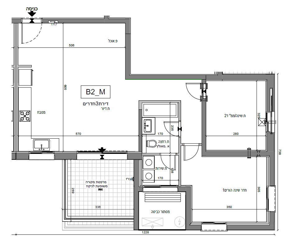
דירה מס׳ 28/22/16/10

שטח דירה: 81 מ"ר | שטח מרפסת: 10 מ"ר
בנין C | דגם B
קומות: 2.3.4.5
לדירה חניה צמודה ומחסן

הריהוט, האביזרים והפריטים המופיעים ע”ג התוכנית הינם לצורך המחשה בלבד. התוכנית הינה עקרונית וכפופה לאישור האדריכל, יועצי הפרויקט ואישור הרשויות. את החברה יחייבו תוכניות ומפרטי המכר אשר יצורפו להסכם המכר. המידות המופיעות הן לפני טיח וצבע. ט.ל.ח

חלל ציבורי מרווח עם
מרפסת ריבועית

נוף
לגינה

מאסטר הורים מפנק
וחדרי שינה מרווחים

ניצול שטח
מיטבי

חלל ציבורי
עם נוף לגינה

חלל ציבורי מרווח
עם מרפסת ריבועית

ניצול שטח
מיטבי

מאסטר הורים מפנק
וחדרי שינה מרווחים

דירה מס׳ 28/22/16/10

שטח דירה: 81 מ"ר | שטח מרפסת: 10 מ"ר
בנין C | דגם B
קומות: 2.3.4.5
לדירה חניה צמודה ומחסן

חלל ציבורי מרווח עם
מרפסת ריבועית

נוף
לגינה

מאסטר הורים מפנק
וחדרי שינה מרווחים

ניצול שטח
מיטבי

הריהוט, האביזרים והפריטים המופיעים ע”ג התוכנית הינם לצורך המחשה בלבד. התוכנית הינה עקרונית וכפופה לאישור האדריכל, יועצי הפרויקט ואישור הרשויות. את החברה יחייבו תוכניות ומפרטי המכר אשר יצורפו להסכם המכר. המידות המופיעות הן לפני טיח וצבע. ט.ל.ח

גדלי דירות ומיקומן

גדלי דירות ומיקומן

גדלי דירות ומיקומן

גדלי דירות ומיקומן

אולי יעניין אתכם גם

אולי יעניין אתכם גם

דירות גן

דירות פנטהאוז

5 חדרים

5 חדרים

דירת גן

דירת פנטהאוז

תוכנית דירה תעלה בקרוב

לפרטים נוספים, צור קשר